#1087
17 Bed Property Midlands for sale
Offaly
Description
St Kierans, The Pike, Rathcabbin, Co Tipperary/Co Offaly, R42WV32
Price: €650,000
17 Bed
5 Bath
850 m²
Bungalow
- Highlights:
- 17 Bedrooms
- Entrance Hall
- Reception Room
- Accommodation Extends
- Cast Iron Open Fireplace Store
- Office
- Bathroom/Shower
- Communal Lounge/Day Room
- Communal Dining Room
- Kitchen
Description
Urban Link are delighted to offer St Kieran’s, (former Care Home) Rathcabbin, Roscrea, to the market for sale.
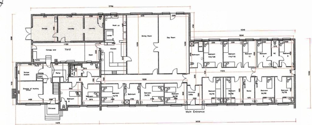
A seventeen bedroomed dedicated home, with full planning extending to approx. 850 sq.mts / 9149 sq. ft. in total and provides accommodation with seventeen independent rooms, many double ones together will all ancillary rooms and services.
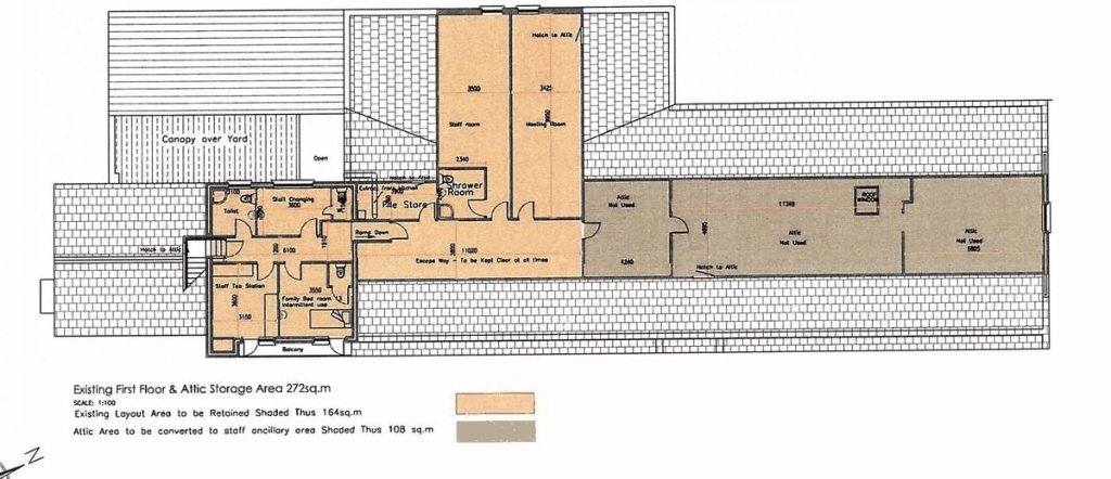
Staff day/service accommodation is provided at first floor level. The property has a dedicated laundry fully fitted out.
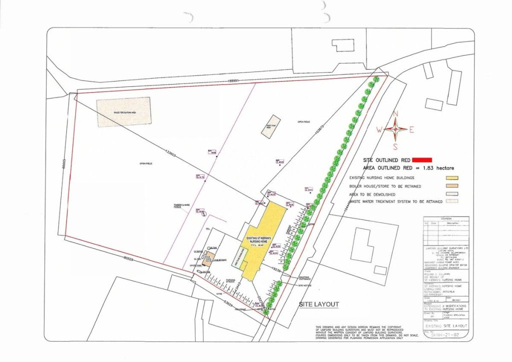
This exceptionally well-maintained property originally built in 1979 and extended over the years, stands on a site measuring 1.83 hectares/ 4.54 acres and was recently granted planning permission for an additional forty-four bedrooms. There is plenty of parking on site and the front perimeter is surrounded by beautiful mature trees.
The location is rural and peaceful, surrounded by beautiful countryside. It is almost equidistant from Birr and Portumna benefitting from the best of the Midlands, a gateway to the West, and within easy reach of the river Shannon and all that has to offer.
The fit out internally is without compromise including a full stainless steel catering kitchen, tiled wet rooms, full fire compliance, deeply comfortable rooms, a dedicated laundry with new machines, and staff facilities overhead.
Single and three phase power are installed, high speed broadband, the property has its own generator, zoned oil-fired central heating, mains water connection, as well as a newly installed sewerage treatment plant, water softening system, and a refuse compressing system.
St Kieran’s is a high functioning commercial and residential opportunity. It is ready to immediately accommodate a business again, suited to many business areas such as large-scale residential accommodation for businesses in the region, an education/training facility, hospitality, or tourism.
* Entrance Hall 2.62m x 3.7m
* Reception Room 3.7m x 4.39m
* Accommodation extends 950sq.m
* Cast iron open fireplace store 1.55m x 1.67m
* Office 3.08m x 3.3m
* 5 Single Bedrooms
* 9 Double Bedrooms
* All bedrooms Have WHB, laminate flooring, fire doors, privacy curtain rails, call bells, TV points and fitted wardrobes/cupboards. All enjoy lovely views to the front and rear of the building. Some bedrooms have interconnecting doors to the bathrooms and WC.
* Bathroom/Shower 2.75m x 3.6m. Fully tiled with WC, WHB and power shower
* Communal Lounge/Day Room 5.4m x 10.12m. Extremely bright and spacious communal area with wonderful views overlooking the rear garden and countryside. - Fully fitted out with hospital grade arm chairs, electric effect fire, fitted shelving and wooden flooring. Double doors lead to a lovely outside patio area.
* Communal Dining Room 5.35m x 10.12m. Fully fitted with table and chairs this bright functional space is currently used as a dining area with a wonderful feature stained glass window overlooking the internal hall
* Kitchen 4.35m x 5.31m. Recently upgraded and modernised to provide for a fully fitted stainless steel catering kitchen incorporating ovens, 6 ring gas hob, microwave, grill, extractor hood, large display hot counter/bain-marie, stainless steel display sink units, two large fridge freezers, water boiler, dishwasher and much more. Door to rear yard and external laundry room.
* Food Preparation/Wash Up Area 3.65m x 4.42m. Stainless steel sink units, storage areas and dishwasher and fridge
* Main Entrance Lobby 2.67m x 3.54m
* Shower Room & WC 2.11m x 4.68m. Fully tiled with WC, 2 x WHB and power shower
* Sluice Room 1.49m x 4.52m. With double sink and tiled floor
* Toilet and Washroom 1.27m x 4.66m. With WC and WHB. Currently used as a single room with a WHB, fitted wardrobes, laminate flooring, hospital grade single bed with cot sides, privacy curtain rails and views overlooking the countryside to the rear of the property.
* Bathroom 2.3m x 4.5m. With WC & WHB, Bath and power shower
* Upstairs There are a number of rooms at floor level which were used by the previous owners as staff/family quarters. There are also 3 attic rooms which are ideal as storage areas.
* Accommodation comprises: Shower room 2.07m x 2.17m
Kitchen 3.09m x 3.58m
Bedroom 3.56m x 3.56m with wooden flooring, WC, WHB
* Self Contained Apartment 3.31m x 9.97m. With fitted kitchens units, lounge area and separate fully tiled ensuite incorporating WC, WHB and Triton electric shower.
* Office/Store 3.35m x 9.97m
* Attic Rooms 3 floored and ideal for storage
* Outside The Property The property is set well back from the road and parking is provided for a large number of cars. The property is fenced all around with perimeter shrubs and trees to the front. A large block built boiler house to the rear provides storage and a laundry room off an enclosed yard is fully fitted with storage and wash areas, together with industrial washing machines and dryers.
For further information please contact the listing ahent on 089 401 33 88
Price: €650,000
17 Bed
5 Bath
850 m²
Bungalow
- Highlights:
- 17 Bedrooms
- Entrance Hall
- Reception Room
- Accommodation Extends
- Cast Iron Open Fireplace Store
- Office
- Bathroom/Shower
- Communal Lounge/Day Room
- Communal Dining Room
- Kitchen
Description
Urban Link are delighted to offer St Kieran’s, (former Care Home) Rathcabbin, Roscrea, to the market for sale.
A seventeen bedroomed dedicated home, with full planning extending to approx. 850 sq.mts / 9149 sq. ft. in total and provides accommodation with seventeen independent rooms, many double ones together will all ancillary rooms and services.
Staff day/service accommodation is provided at first floor level. The property has a dedicated laundry fully fitted out.
This exceptionally well-maintained property originally built in 1979 and extended over the years, stands on a site measuring 1.83 hectares/ 4.54 acres and was recently granted planning permission for an additional forty-four bedrooms. There is plenty of parking on site and the front perimeter is surrounded by beautiful mature trees.
The location is rural and peaceful, surrounded by beautiful countryside. It is almost equidistant from Birr and Portumna benefitting from the best of the Midlands, a gateway to the West, and within easy reach of the river Shannon and all that has to offer.
The fit out internally is without compromise including a full stainless steel catering kitchen, tiled wet rooms, full fire compliance, deeply comfortable rooms, a dedicated laundry with new machines, and staff facilities overhead.
Single and three phase power are installed, high speed broadband, the property has its own generator, zoned oil-fired central heating, mains water connection, as well as a newly installed sewerage treatment plant, water softening system, and a refuse compressing system.
St Kieran’s is a high functioning commercial and residential opportunity. It is ready to immediately accommodate a business again, suited to many business areas such as large-scale residential accommodation for businesses in the region, an education/training facility, hospitality, or tourism.
* Entrance Hall 2.62m x 3.7m
* Reception Room 3.7m x 4.39m
* Accommodation extends 950sq.m
* Cast iron open fireplace store 1.55m x 1.67m
* Office 3.08m x 3.3m
* 5 Single Bedrooms
* 9 Double Bedrooms
* All bedrooms Have WHB, laminate flooring, fire doors, privacy curtain rails, call bells, TV points and fitted wardrobes/cupboards. All enjoy lovely views to the front and rear of the building. Some bedrooms have interconnecting doors to the bathrooms and WC.
* Bathroom/Shower 2.75m x 3.6m. Fully tiled with WC, WHB and power shower
* Communal Lounge/Day Room 5.4m x 10.12m. Extremely bright and spacious communal area with wonderful views overlooking the rear garden and countryside. - Fully fitted out with hospital grade arm chairs, electric effect fire, fitted shelving and wooden flooring. Double doors lead to a lovely outside patio area.
* Communal Dining Room 5.35m x 10.12m. Fully fitted with table and chairs this bright functional space is currently used as a dining area with a wonderful feature stained glass window overlooking the internal hall
* Kitchen 4.35m x 5.31m. Recently upgraded and modernised to provide for a fully fitted stainless steel catering kitchen incorporating ovens, 6 ring gas hob, microwave, grill, extractor hood, large display hot counter/bain-marie, stainless steel display sink units, two large fridge freezers, water boiler, dishwasher and much more. Door to rear yard and external laundry room.
* Food Preparation/Wash Up Area 3.65m x 4.42m. Stainless steel sink units, storage areas and dishwasher and fridge
* Main Entrance Lobby 2.67m x 3.54m
* Shower Room & WC 2.11m x 4.68m. Fully tiled with WC, 2 x WHB and power shower
* Sluice Room 1.49m x 4.52m. With double sink and tiled floor
* Toilet and Washroom 1.27m x 4.66m. With WC and WHB. Currently used as a single room with a WHB, fitted wardrobes, laminate flooring, hospital grade single bed with cot sides, privacy curtain rails and views overlooking the countryside to the rear of the property.
* Bathroom 2.3m x 4.5m. With WC & WHB, Bath and power shower
* Upstairs There are a number of rooms at floor level which were used by the previous owners as staff/family quarters. There are also 3 attic rooms which are ideal as storage areas.
* Accommodation comprises: Shower room 2.07m x 2.17m
Kitchen 3.09m x 3.58m
Bedroom 3.56m x 3.56m with wooden flooring, WC, WHB
* Self Contained Apartment 3.31m x 9.97m. With fitted kitchens units, lounge area and separate fully tiled ensuite incorporating WC, WHB and Triton electric shower.
* Office/Store 3.35m x 9.97m
* Attic Rooms 3 floored and ideal for storage
* Outside The Property The property is set well back from the road and parking is provided for a large number of cars. The property is fenced all around with perimeter shrubs and trees to the front. A large block built boiler house to the rear provides storage and a laundry room off an enclosed yard is fully fitted with storage and wash areas, together with industrial washing machines and dryers.
For further information please contact the listing ahent on 089 401 33 88
Enquire