#1081
4.2 Acre Zoned Residential Development Site Boyle
€900.000
Description
Urban Link bring to market this 4.2-acre residential development site with street access on two sides in the beautiful village of Cootehall, Co Roscommon - An example of one of the houses that has already been built is listed as one of the photos.
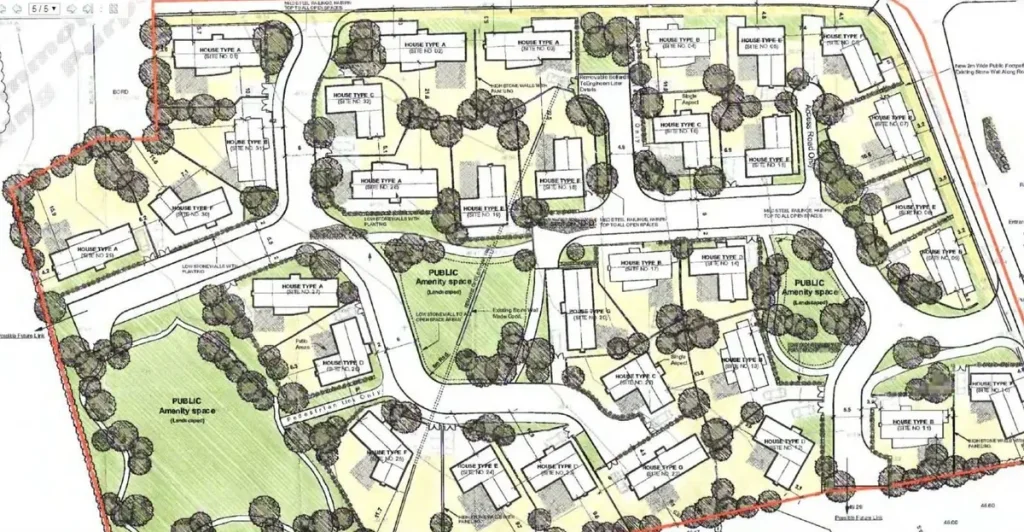
Previous Planning for 25 Modern Detached Houses | may be possible to increase density, subject to planning.
Located just off N4 Motorway which is 10 min drive to both Carrick on Shannon and Boyle - 45 min to Knock Airport | 30 min to Sligo - Two Train Stations - 10 minutes drive to each. - All services onsite including Water, Waste, Electricity, Gas (Flogas) and High Speed Broadband. - Popular location with Boating Marina, Restaurants, Schools, Shops, Gyms, Church and the famous Lough Key Forest Park only a short stroll away. - Rarely that a site of this quality and location comes on the market. - 10min Drive from the new Carrick Business Campus - https://carrickbusinesscampus.ie
Previous Planning Drawings are available to view - design is attached to the photos together with a photo of the original show house which has been built for this development.
Sensible Offers considered
Previous Planning for 25 Modern Detached Houses | may be possible to increase density, subject to planning.
Located just off N4 Motorway which is 10 min drive to both Carrick on Shannon and Boyle - 45 min to Knock Airport | 30 min to Sligo - Two Train Stations - 10 minutes drive to each. - All services onsite including Water, Waste, Electricity, Gas (Flogas) and High Speed Broadband. - Popular location with Boating Marina, Restaurants, Schools, Shops, Gyms, Church and the famous Lough Key Forest Park only a short stroll away. - Rarely that a site of this quality and location comes on the market. - 10min Drive from the new Carrick Business Campus - https://carrickbusinesscampus.ie
Previous Planning Drawings are available to view - design is attached to the photos together with a photo of the original show house which has been built for this development.
Sensible Offers considered
Details
Property Subtype:
Plot
Enquire